503 N Elm DriveBeverly Hills, CA 90210


Mortgage Calculator
Monthly Payment (Est.)
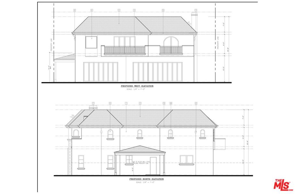
$34,218A rare Mediterranean estate opportunity awaits in the prestigious Beverly Hills Flats. Situated on one of the most desirable tree-lined streets, this exceptional parcel is being offered with approved plans and permits, allowing for the immediate construction of a timeless 9,506sqft residence. The proposed design showcases the elegance of Mediterranean architecture, blending classic sophistication with modern amenities. The estate features grand formal living and dining rooms, expansive family spaces, and walls of glass that open to showcase indoor-outdoor living at its finest. Plans call for resort-style amenities, including a pool, spa, outdoor kitchen, multiple terraces, and generous entertaining spaces throughout. With every detail thoughtfully conceived, from a custom wine cellar and chef's kitchen to seamless indoor/outdoor transitions, this home promises a lifestyle of luxury and refinement. Just moments from world-class shopping and dining on Rodeo Drive and Canon Drive, the property offers both prestige and convenience. This is a land-only sale with plans and permits included, an opportunity to save years of time and expense while creating a distinguished Mediterranean dream estate in Beverly Hills' most sought-after neighborhood.
| 3 weeks ago | Listing updated with changes from the MLS® | |
| 4 weeks ago | Listing first seen on site |
This information is for your personal, non-commercial use and may not be used for any purpose other than to identify prospective properties you may be interested in purchasing. The display of MLS data is usually deemed reliable but is NOT guaranteed accurate by the MLS. Buyers are responsible for verifying the accuracy of all information and should investigate the data themselves or retain appropriate professionals. Information from sources other than the Listing Agent may have been included in the MLS data. Unless otherwise specified in writing, the Broker/Agent has not and will not verify any information obtained from other sources. The Broker/Agent providing the information contained herein may or may not have been the Listing and/or Selling Agent.

Did you know? You can invite friends and family to your search. They can join your search, rate and discuss listings with you.